Pescheria Lucca

📍 Lucca

🛒 Supermercato 🍽️ Ristorante 🐟 Pesce
10 Foto
💼 Progetto

📐 Progettazione

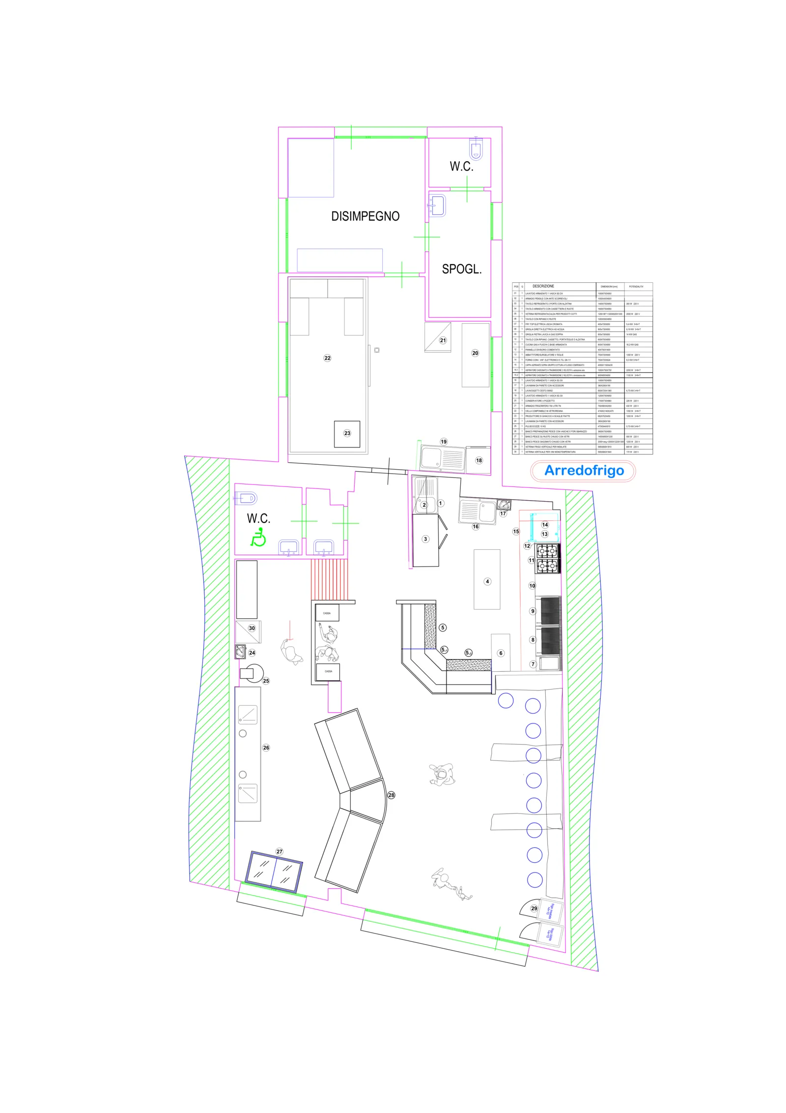
Disegno CAD - Pescheria Lucca
🔍

Clicca per ingrandire

Progetto tecnico

Disegno CAD della cucina professionale realizzata per Pescheria Lucca a Lucca.

🎯 Altre realizzazioni

Istituto Alberghiero Martini

Istituto Alberghiero Martini

📍 Montecatini

Vedi dettagli
Ristorante Il Melograno

Ristorante Il Melograno

📍 Altopascio

Vedi dettagli
Trattoria da Sandrino

Trattoria da Sandrino

📍 Sorana

Vedi dettagli